Building
Homes For Sale
Vacation Rentals
Residential Rentals
About
Gallery
Menu
Jardina Homes
Building
Homes For Sale
Vacation Rentals
Residential Rentals
About
Gallery
×
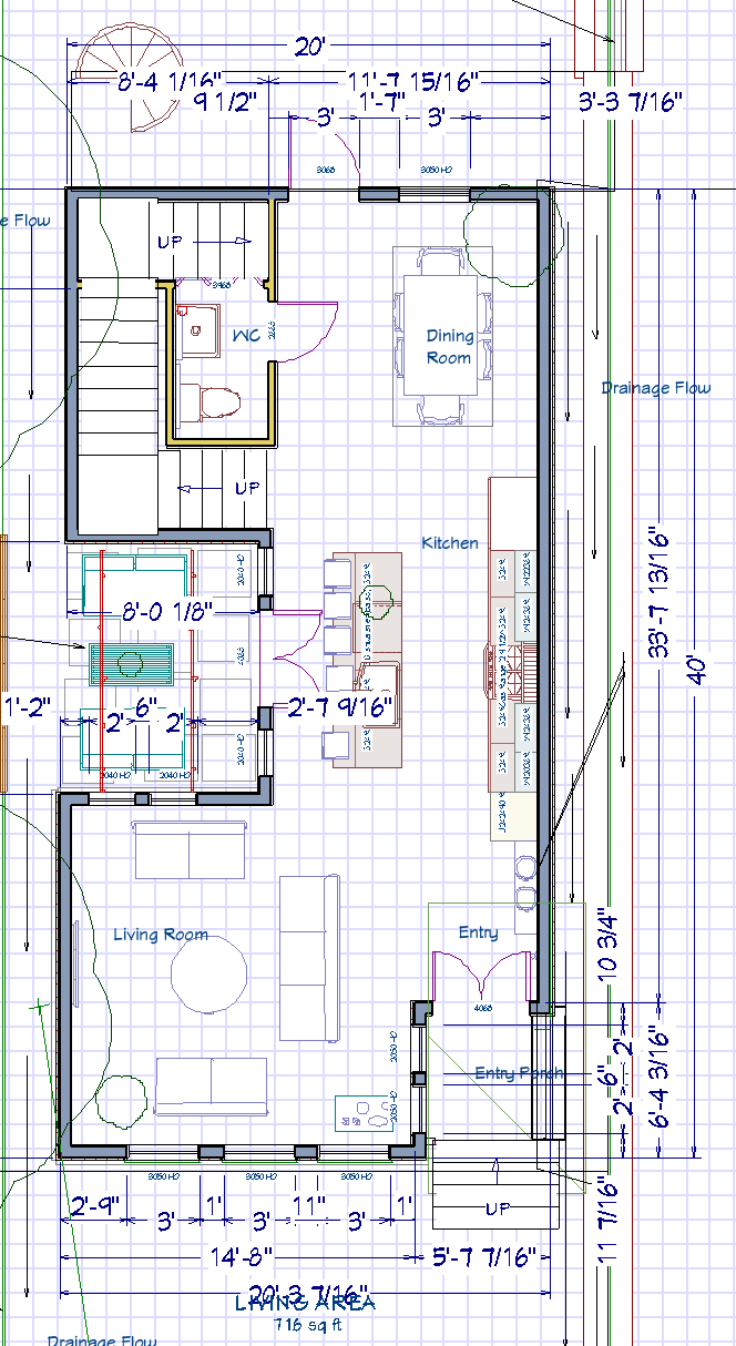
Plan 1: Coastal Tower Plan
2 Bedroom
2.5 Bath
1,435 total sq ft
1,354 living sq ft
Hardi lap
metal siding & roof
9' ceilings
Coastal contemporary Style